Проект БК-16. Каркасная баня 6х7 м.

Сообщение об ошибке

  • Notice: Trying to get property of non-object в функции am_gal_panels_pane_content_alter() (строка 168 в файле /var/www/premier-53/data/www/sk-premierdom.ru/sites/all/modules/am_gal/am_gal.module).
  • Notice: Trying to get property of non-object в функции am_gal_panels_pane_content_alter() (строка 168 в файле /var/www/premier-53/data/www/sk-premierdom.ru/sites/all/modules/am_gal/am_gal.module).
  • Notice: Trying to get property of non-object в функции am_gal_panels_pane_content_alter() (строка 168 в файле /var/www/premier-53/data/www/sk-premierdom.ru/sites/all/modules/am_gal/am_gal.module).
  • Notice: Trying to get property of non-object в функции am_gal_panels_pane_content_alter() (строка 168 в файле /var/www/premier-53/data/www/sk-premierdom.ru/sites/all/modules/am_gal/am_gal.module).
  • Notice: Trying to get property of non-object в функции am_gal_panels_pane_content_alter() (строка 168 в файле /var/www/premier-53/data/www/sk-premierdom.ru/sites/all/modules/am_gal/am_gal.module).
Размер:
6х7
Этажность:
С мансардой
Площадь:
73 м²
Без отделки.
Контур
1 191 500 руб.
Без отделки.
Тёплый контур
1 600 900 руб.
С отделкой.
Комфорт
2 168 500 руб.
С отделкой.
Премиум
2 485 600 руб.
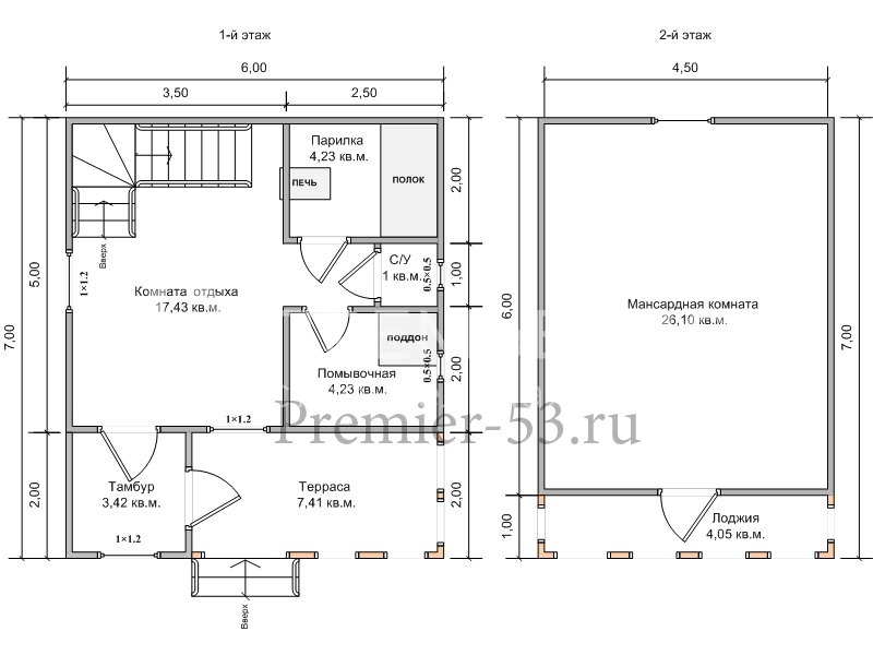
План каркасной бани 6х7 м. - Проект БК-16
Планировку можно изменить по вашему желанию. Вы можете добавить или убрать перегородку,
изменить назначение помещений или добавить окна там, где вам нужно больше света.
Наши специалисты помогут создать индивидуальный проект по вашим пожеланиям.

Технология строительства

Описание комплектаций

  Контур Теплый контур Комфорт Премиум
Сухой строганный антисептированный материал
 
 
 
 
Обвязка 150×150 мм 150×150 мм 150×150 мм 150×150 мм
Лаги 50×200 мм 50×200 мм 50×200 мм 50×200 мм
Каркас 50×150 мм 50×150 мм 50×150 мм 50×150 мм
Стропильная система 50×150 мм 50×150 мм 50×150 мм 50×200 мм
Кровля Металлочерепица Металлочерепица Металлочерепица Металлочерепица
Снегозадержатели нет нет нет
 
Вентиляция Вент труба + клапана Вент труба + клапана Вент труба + клапана Вент труба + КИВ
Окна ПВХ 62 мм ПВХ 62 мм ПВХ 62 мм ПВХ 70 мм
Дверь входная металл металл металл Металл с терморазрывом
Двери межкомнатные нет нет нет нет
Наружная отделка Имитация бруса Имитация бруса Имитация бруса Имитация бруса
Ветрозащита Изоспан А Изоспан А Изоспан А Изоплат 12 мм
Утепление нет Роквул 150 мм Роквул 150 мм Роквул 200 мм
Внутренняя отделка нет нет Евровагонка Имитация бруса
Банная печь нет нет Ермак 12 Ермак 16ПС
Пол нет нет Квикдек Квикдек
Сборка
 
 
 
 
Доставка
 
 
 
 
Технический надзор
 
 
 
 

Полное описание комплектаций

  Без отделки
Контур
Без отделки
Теплый контур
С отделкой
Комфорт
С отделкой
Премиум
ОСНОВАНИЕ
Основание: из бруса сечением 100×150 мм 150×150 мм 150×150 мм 150×150 мм
Лаги пола: сухая, строганная доска 50×200 мм 50×200 мм 50×200 мм 50×200 мм
Черновой пол: обрезная доска 20 мм 20 мм 20 мм 20 мм
СИЛОВОЙ КАРКАС
Стойки стен: сухая, строганная доска через 59 см 50×100 мм 50×150 мм 50×150 мм 50×150 мм
Укосины стен: сухая, строганная доска 50×100 мм 50×100 мм 50×100 мм 50×100 мм
Ригеля: сухая, строганная доска 50×100 мм 50×150 мм 50×150 мм 50×150 мм
Перегородки: сухая, строганная доска через 59 см 50×100 мм 50×100 мм 50×100 мм 50×100 мм
Потолочные балки: сухая, строганная доска 50×150 мм 50×200 мм 50×200 мм 50×200 мм
ОТДЕЛКА ФАСАДА
Влаго-ветроизоляция Наноизол «А» Наноизол «А» Наноизол «А» Изоплат 12 мм
Вентиляционные зазоры: сухой, строганный брусок 40×40 мм 40×40 мм 40×40 мм 40×40 мм
Внешняя отделка Имитация бруса камерной сушки Имитация бруса камерной сушки Имитация бруса камерной сушки Имитация бруса камерной сушки
КРЫША
Стропила: сухая, строганная доска 50×150 мм 50×150 мм 50×150 мм 50×200 мм
Вентиляционные зазоры (контробрешетка) сухой, строганный брусок 40×40 мм сухой, строганный брусок 40×40 мм сухой, строганный брусок 40×40 мм сухой, строганный брусок 40×40 мм
Обрешетка доска толщиной 20 мм доска толщиной 20 мм доска толщиной 20 мм доска толщиной 20 мм
Кровля Металлочерепица, цвет на выбор Металлочерепица, цвет на выбор Металлочерепица, цвет на выбор Металлочерепица, цвет на выбор
Снегозадержатели - - - металлические
Вынос кровли, свесы не менее 45 см не менее 45 см не менее 45 см не менее 45 см
ВЕНТИЛЯЦИЯ
Приток воздуха приточный клапан на окна ПВХ приточный клапан на окна ПВХ приточный клапан на окна ПВХ стеновые клапана КИВ 125
Общедомовая вытяжка Вентиляционная труба Вилпе Вентиляционная труба Вилпе Вентиляционная труба Вилпе Вентиляционная труба Вилпе
Вытяжка ванных комнат - - - Вентиляционная труба Вилпе
ВНУТРЕННЯЯ ОТДЕЛКА
Пароизоляция - Наноизол «В» Наноизол «В» Наноизол «В»
Пароизоляция парной - алюминиевая фольга алюминиевая фольга алюминиевая фольга
Вентиляционные зазоры - - сухая, строганная рейка 20×50 мм сухая, строганная рейка 20×50 мм
Чистовая отделка (камерной сушки) - - вагонка имитация бруса
Чистовая отделка парной (камерной сушки) - - осиновая вагонка «В» осиновая вагонка «А»
Пологи - - двухъярусные из осиновой доски двухъярусные из осиновой доски
Банная печь - - Ермак 12 Ермак 16 ПС
Водоотведение - - Душевой поддон Душевой поддон
Чистовая отделка (камерной сушки) - - вагонка имитация бруса
Высота 1 этажа 2,3 м 2,3 м 2,3 м 2,5 м
Высота 2 этажа 2,3 м 2,3 м 2,3 м 2,3 м
УТЕПЛЕНИЕ
Пол: базальтовые плиты Rockwool - 150 мм 150 мм 150 мм
Стены 1 этаж: базальтовые плиты Rockwool - 150 мм 150 мм 150 мм
Межэтажное перекрытие базальтовые плиты Rockwool - 150 мм 150 мм 150 мм
Перегородки: базальтовые плиты Rockwool - 100 мм 100 мм 100 мм
Стены 2 этаж: базальтовые плиты Rockwool - 150 мм 150 мм 150 мм
Потолок 2 этаж: базальтовые плиты Rockwool - 150 мм 150 мм 150 мм
ЧИСТОВОЙ ПОЛ
Пол: доска шпунтованная камерной сушки - - 36 мм 36 мм
ОКНА, ДВЕРИ
Дверь входная металлическая утепленная металлическая утепленная металлическая утепленная металлическая утепленная с терморазрывом
Двери межкомнатные: на петлях без фурнитуры - - - -
Окна ПВХ двухкамерные ПВХ двухкамерные ПВХ двухкамерные ПВХ профиль 70 двухкамерные
ЛЕСТНИЦА
Лестница деревянная - - тетива 200×50 мм, ступени клееные 200×50 мм, перила заводские клееная тетива 200×50 мм, ступени клееные 250×50 мм, перила заводские
ТЕРРАСА, БАЛКОНЫ
Пол : строганная доска - - 36 мм 36 мм
Ограждение: балясины - - горизонтальные или резные вертикальные горизонтальные или резные вертикальные
Сборка и доставка в радиусе 500 км от производственной базы входит в стоимость.

Дополнительные услуги

Свайно-винтовой фундамент
Металлические сваи D -108 мм, L -2.5 м.с оголовком 200х200 мм.
69 000 руб.
Сваи ЖБИ
Железобетонные сваи D -150 мм, L -2.5 м.с оголовком 200х200 мм.
86 000 руб.
Отделка цоколя панелями
Фасадные панели Docke с отливной планкой.
65 000 руб.
Электропроводка
Скрытая электропроводка ВВГ в пвх гофре, со сборкой щитка.
212 500 руб.
Отопление
Электрокотел с разводкой труб и радиаторов по дому.
283 600 руб.
Водоразведение и канализация
Разведение воды и канализации по дому.
395 000 руб.
Сетка от грызунов
Металлическая сетка по основанию и вент. зазору.
32 850 руб.
Покраска фасада
Заводская покраска фасада в 2 слоя краской Tikkurila.
205 500 руб.
Водосточная система
Водосточная система Docke, базовая серия.
32 000 руб.

Связаться с нами

Оформить заказ / Задать вопрос

Отправить проект на расчет

На этой странице Вы можете оставить заявку на расчет строительства дома или бани по Вашему проекту. Приложите Ваш чертеж к сообщению, либо укажите ссылку с другого сайта. Также напишите все Ваши пожелания для более точного расчета.

На расчет потребуется время, как правило 1-2 дня. Просим проявить терпение.
Менеджер свяжется с вами по готовности.

Если Вы загружаете свой проект, не забудьте нажать кнопку «Закачать», иначе мы не получим файл
Максимальный размер файла: 20 МБ.
Допустимые типы файлов: gif jpg jpeg png bmp eps tif pict psd rtf pdf doc docx xls xlsx ods.
Максимальный размер файла: 20 МБ.
Допустимые типы файлов: gif jpg jpeg png bmp eps tif pict psd pdf doc docx xls xlsx ods.
Максимальный размер файла: 20 МБ.
Допустимые типы файлов: gif jpg jpeg png bmp eps tif pict psd pdf doc docx xls xlsx.

Хочу себе такой же!

Наш сайт использует куки. Продолжая им пользоваться, вы соглашаетесь на обработку персональных данных в соответствии с политикой конфиденциальности.