Проект А-43. Дачный дом 6х7,5 м.

Сообщение об ошибке

  • Notice: Trying to get property of non-object в функции am_gal_panels_pane_content_alter() (строка 168 в файле /var/www/premier-53/data/www/sk-premierdom.ru/sites/all/modules/am_gal/am_gal.module).
  • Notice: Trying to get property of non-object в функции am_gal_panels_pane_content_alter() (строка 168 в файле /var/www/premier-53/data/www/sk-premierdom.ru/sites/all/modules/am_gal/am_gal.module).
  • Notice: Trying to get property of non-object в функции am_gal_panels_pane_content_alter() (строка 168 в файле /var/www/premier-53/data/www/sk-premierdom.ru/sites/all/modules/am_gal/am_gal.module).
  • Notice: Trying to get property of non-object в функции am_gal_panels_pane_content_alter() (строка 168 в файле /var/www/premier-53/data/www/sk-premierdom.ru/sites/all/modules/am_gal/am_gal.module).
  • Notice: Trying to get property of non-object в функции am_gal_panels_pane_content_alter() (строка 168 в файле /var/www/premier-53/data/www/sk-premierdom.ru/sites/all/modules/am_gal/am_gal.module).
  • Notice: Trying to get property of non-object в функции am_gal_panels_pane_content_alter() (строка 168 в файле /var/www/premier-53/data/www/sk-premierdom.ru/sites/all/modules/am_gal/am_gal.module).
Размер:
6х7,5
Этажность:
С мансардой
Площадь:
83 м²
Дачный.
Брус 90×140
2 002 500 руб.
Стандарт.
Брус 140×140
2 199 600 руб.
Дачный.
Каркас 100 мм.
1 978 500 руб.
Стандарт.
Каркас 150 мм.
2 093 100 руб.
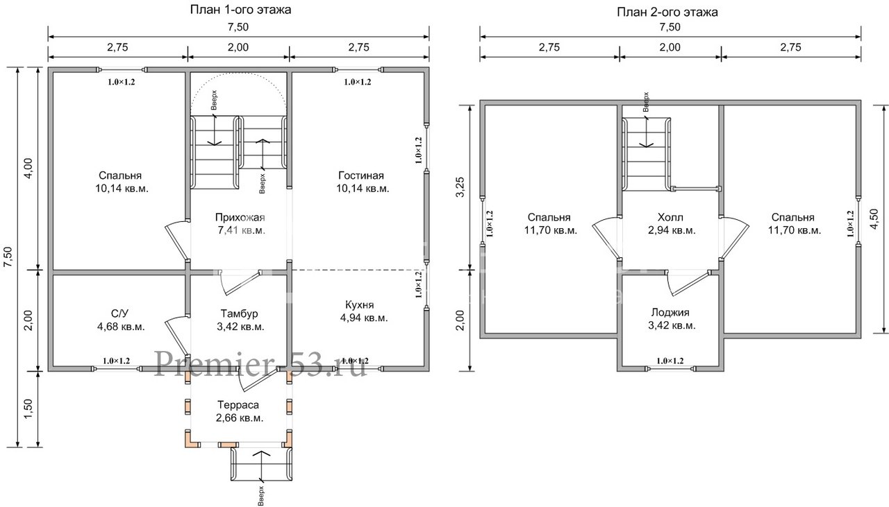
План дачного дома 6х7,5 м. - Проект А-43
Планировку можно изменить по вашему желанию. Вы можете добавить или убрать перегородку,
изменить назначение помещений или добавить окна там, где вам нужно больше света.
Наши специалисты помогут создать индивидуальный проект по вашим пожеланиям.

Описание комплектаций

  Дачный
Брус 90×140
Стандарт
Брус 140×140
Дачный
Каркас 100 мм.
Стандарт
Каркас 150 мм.
ОСНОВАНИЕ
Обвязка двойная: из бруса сечением 100×150 мм 100×150 мм 100×150 мм 100×150 мм
Лаги пола: сухая доска врезается во второй ряд обвязки 40×150 мм 40×150 мм 40×150 мм 40×150 мм
Черновой пол: обрезная доска 20 мм 20 мм 20 мм 20 мм
СТЕНЫ И ПЕРЕГОРОДКИ
Внешние стены: профилированный брус камерной сушки 90×140 мм профилированный брус камерной сушки 140×140 мм Каркасные.Стойки стен: сухая доска 40×100 мм через 59 см Каркасные.Стойки стен: сухая доска 40×150 мм через 59 см
Перегородки 1-й этаж: профилированный брус камерной сушки 90×140 мм профилированный брус камерной сушки 90×140 мм Стойки стен: сухая доска 40×100 мм через 59 см Стойки стен: сухая доска 40×100 мм через 59 см
Сборка в теплый угол, на деревянные нагеля.
Перегородки мансардного этажа: сухая доска через 59 см 40×100 мм сухая доска через 59 см 40×100 мм сухая доска через 59 см 40×100 мм сухая доска через 59 см 40×100 мм
Потолочные балки: сухая доска 40×150 мм 40×150 мм 40×150 мм 40×150 мм
НАРУЖНАЯ ОТДЕЛКА
Влаго-ветроизоляция Наноизол «А» Наноизол «А» Наноизол «А» Наноизол «А»
Вентиляционные зазоры сухая рейка 20×50 мм сухая рейка 20×50 мм сухая рейка 20×50 мм сухая рейка 20×50 мм
Внешняя отделка Вагонка 16×90 камерной сушки Вагонка 16×90 камерной сушки Вагонка 16×90 камерной сушки Вагонка 16×90 камерной сушки
КРЫША
Стропила: сухая доска 40×100 мм 40×150 мм 40×100 мм 40×150 мм
Вентиляционные зазоры (контробрешетка) сухой брусок 40×40 мм сухой брусок 40×40 мм сухой брусок 40×40 мм сухой брусок 40×40 мм
Обрешетка доска толщиной 20 мм доска толщиной 20 мм доска толщиной 20 мм доска толщиной 20 мм
Кровля ондулин ондулин ондулин ондулин
Вынос кровли, свесы не менее 27 см не менее 27 см не менее 27 см не менее 27 см
ВНУТРЕННЯЯ ОТДЕЛКА
Пароизоляция Наноизол «В» Наноизол «В» Наноизол «В» Наноизол «В»
Вентиляционные зазоры сухая рейка 20×50 мм сухая рейка 20×50 мм сухая рейка 20×50 мм сухая рейка 20×50 мм
Чистовая отделка (камерной сушки) вагонка вагонка вагонка вагонка
Высота 1 этажа 2,35 м 2,35 м 2,35 м 2,35 м
Высота 2 этажа 2,2 м 2,2 м 2,2 м 2,2 м
УТЕПЛЕНИЕ
Пол: минеральная вата Isover 100 мм 150 мм 100 мм 150 мм
Межэтажное перекрытие минеральная вата Isover 100 мм 150 мм 100 мм 150 мм
Перегородки каркасные: минеральная вата Isover 100 мм 100 мм 100 мм 100 мм
Стены 1-й этаж: базальтовые плиты Rockwool - - 100 мм 150 мм
Потолок 2 этаж: минеральная вата Isover 100 мм 150 мм 100 мм 150 мм
ЧИСТОВОЙ ПОЛ
Квик Дек по доске 30 мм Квик Дек 16 мм Квик Дек 16 мм Квик Дек 16 мм Квик Дек 16 мм
ОКНА, ДВЕРИ
Дверь входная металлическая утепленная металлическая утепленная металлическая утепленная металлическая утепленная
Двери межкомнатные: на петлях без фурнитуры - - - -
Окна ПВХ двухкамерные ПВХ двухкамерные ПВХ двухкамерные ПВХ двухкамерные
Обсадные бруски ройки ройки - -
ЛЕСТНИЦА
Лестница деревянная тетива 200×50 мм, ступени клееные 200×50 мм, перила заводские тетива 200×50 мм, ступени клееные 200×50 мм, перила заводские тетива 200×50 мм, ступени клееные 200×50 мм, перила заводские тетива 200×50 мм, ступени клееные 200×50 мм, перила заводские
ТЕРРАСА, БАЛКОНЫ
Пол : строганная доска 36 мм 36 мм 36 мм 36 мм
Ограждение: балясины горизонтальные или резные вертикальные горизонтальные или резные вертикальные горизонтальные или резные вертикальные горизонтальные или резные вертикальные
         
Сборка и доставка в радиусе 500 км от производственной базы входит в стоимость.

Дополнительные услуги

Свайно-винтовой фундамент
Металлические сваи D -108 мм, L -2.5 м.с оголовком 200х200 мм.
82 500 руб.
Сваи ЖБИ
Железобетонные сваи D -150 мм, L -2.5 м.с оголовком 200х200 мм.
102 500 руб.
Отделка цоколя панелями
Фасадные панели Docke с отливной планкой.
75 000 руб.
Электропроводка
Скрытая электропроводка ВВГ в пвх гофре, со сборкой щитка.
236 250 руб.
Отопление
Электрокотел с разводкой труб и радиаторов по дому.
314 000 руб.
Водоразведение и канализация
Разведение воды и канализации по дому.
395 000 руб.
Сетка от грызунов
Металлическая сетка по основанию и вент. зазору.
37 125 руб.
Покраска фасада
Заводская покраска фасада в 2 слоя краской Tikkurila.
202 500 руб.
Водосточная система
Водосточная система Docke, базовая серия.
30 000 руб.

Связаться с нами

Оформить заказ / Задать вопрос

Отправить проект на расчет

На этой странице Вы можете оставить заявку на расчет строительства дома или бани по Вашему проекту. Приложите Ваш чертеж к сообщению, либо укажите ссылку с другого сайта. Также напишите все Ваши пожелания для более точного расчета.

На расчет потребуется время, как правило 1-2 дня. Просим проявить терпение.
Менеджер свяжется с вами по готовности.

Если Вы загружаете свой проект, не забудьте нажать кнопку «Закачать», иначе мы не получим файл
Максимальный размер файла: 20 МБ.
Допустимые типы файлов: gif jpg jpeg png bmp eps tif pict psd rtf pdf doc docx xls xlsx ods.
Максимальный размер файла: 20 МБ.
Допустимые типы файлов: gif jpg jpeg png bmp eps tif pict psd pdf doc docx xls xlsx ods.
Максимальный размер файла: 20 МБ.
Допустимые типы файлов: gif jpg jpeg png bmp eps tif pict psd pdf doc docx xls xlsx.

Хочу себе такой же!

Наш сайт использует куки. Продолжая им пользоваться, вы соглашаетесь на обработку персональных данных в соответствии с политикой конфиденциальности.